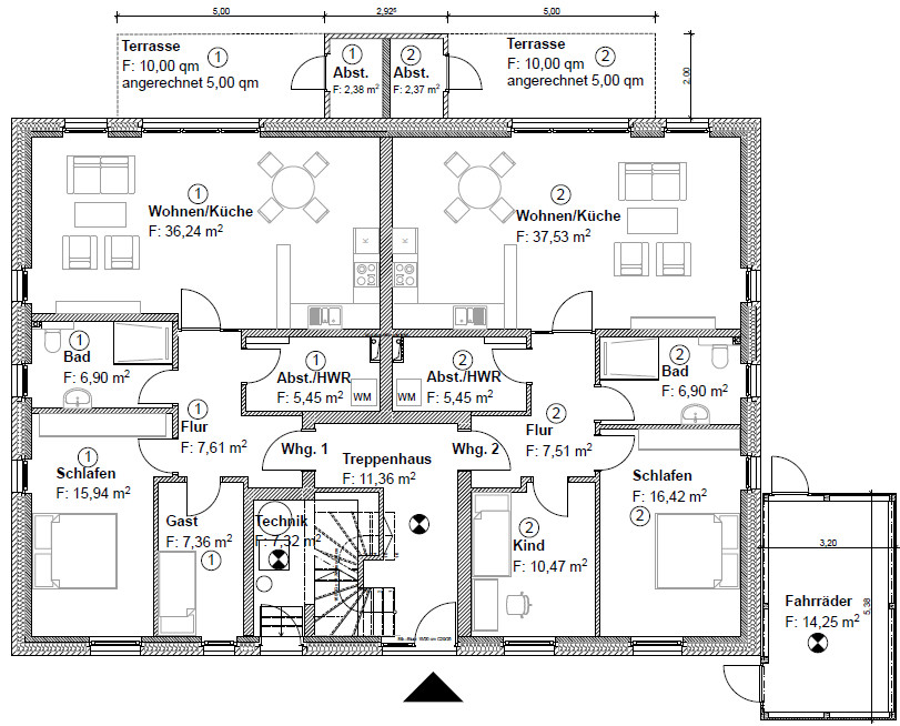
In bevorzugter Wohnlage von Stuhr-Brinkum entsteht ein exklusives Neubauprojekt mit nur vier Wohneinheiten. Ein modernes Wohnkonzept, das energieeffiziente Bauweise mit zeitgemäßem Komfort vereint. Angeboten wird hier eine attraktive 3-Zimmer-Dachgeschosswohnung (rechts Nr. 4) mit ca. 83,73 m² Wohnfläche, deren durchdachter Grundriss sowohl Paare als auch kleine Familien anspricht.
Die Wohnung überzeugt durch ein großzügiges Wohn- und Esszimmer mit direktem Zugang zum Balkon. Zwei gut geschnittene Schlafzimmer, ein hochwertig ausgestattetes Badezimmer mit bodengleicher Walk-in-Dusche sowie ein praktischer Abstellraum innerhalb der Wohnung runden das Raumangebot ab. Zusätzlich bietet ein Spitzboden mit ca. 13,24 m² Nutzfläche weiteren Stauraum und vielseitige Nutzungsmöglichkeiten.
Errichtet wird das Projekt von Sauer Konzeptbau aus Cloppenburg. Einem erfahrenen Bauunternehmen, das für handwerkliche Präzision, langlebige Bauqualität und energieeffizientes Bauen bekannt ist. Sauer Konzeptbau realisiert seit vielen Jahren erfolgreich Projekte in Massivbauweise und legt dabei großen Wert auf nachhaltige Materialien, saubere Ausführung und termintreue Umsetzung. Besonders hervorzuheben ist die enge Abstimmung mit Bauherren und Vertrieb, wodurch individuelle Wünsche und praxisnahe Lösungen frühzeitig berücksichtigt werden können.
Das Gebäude entsteht als klimafreundliches Effizienzhaus 40 mit hochwertigem Verblendmauerwerk, umfassender Wärmedämmung und modernster Haustechnik. Die Beheizung erfolgt über eine umweltfreundliche Luft-Wasser-Wärmepumpe, unterstützt durch eine Photovoltaikanlage zur Eigenstromerzeugung. Für gleichmäßigen Wohnkomfort sorgt eine Fußbodenheizung in allen Räumen, ergänzt durch dreifach verglaste Fenster mit elektrischen Rollläden sowie eine dezentrale Lüftungsanlage mit Wärmerückgewinnung, die für frische Luft und ein angenehmes Raumklima sorgt. Bodenbeläge und Malerarbeiten sind bereits im Kaufpreis enthalten, sodass die Wohnung schlüsselfertig übergeben wird.
Ein PKW-Stellplatz oder Carport kann optional erworben werden, die Vorbereitung für eine Wallbox ist bereits vorgesehen. Ideal für alle, die auf Elektromobilität setzen.
Ein besonderer Vorteil für Kaufinteressierte: Es fallen keine zusätzlichen Vermittlungskosten an, da der Verkauf provisionsfrei erfolgt.
Zudem erfolgt die Kaufpreiszahlung erst mit Übergabe der bezugsfertigen Wohnung. Diese Zahlungsweise bietet maximale Sicherheit, da erst dann gezahlt wird, wenn das Objekt vollständig fertiggestellt und übergabebereit ist, ohne finanzielle Vorleistung während der Bauphase.
Diese moderne Erdgeschosswohnung überzeugt mit zeitgemäßem Wohnkomfort, solider Bauqualität und einer gefragten Lage in Stuhr Brinkum. Ob zur Eigennutzung oder als Kapitalanlage, hier bietet sich eine wertstabile Chance für die Zukunft. Sichern Sie sich frühzeitig Ihr neues Zuhause. Kontaktieren Sie uns gern für weitere Informationen oder ein persönliches Beratungsgespräch. Wir freuen uns auf Ihre Anfrage.







